Alora

Te koop Finca - Cortijo Costa Del Sol Alora € 699.000,-

Ref.no: RSOR5330668
Price: € 699.000,-

1-7980e48d732b6fc85c14b43b94d2aa54.jpg

Te koop Finca - Cortijo Costa Del Sol Alora € 699.000,-

Bedrooms4
Salles de bains4
Superficie du terrain17867m²
Living area285m²
Poolyes
Gardenyes
Parkingyes
Built year2025
Setting: Country
Orientation: South
Condition: Excellent
Pool: Private
Climate Control: Air Conditioning
Views: Mountain, Country, Garden
Features: Covered Terrace, Fitted Wardrobes, Private Terrace, Guest Apartment, Storage Room, Double Glazing
Furniture: Optional
Kitchen: Fully Fitted
Garden: Private
Parking: Garage, Open, More Than One, Private
Utilities: Electricity, Drinkable Water
Category: Resale
Ref.no: RSOR5330668
Price: € 699.000,-

Plus d'information ›››
Te koop Finca - Cortijo Costa Del Sol Alora € 699.000,-

Set in the peaceful rolling countryside with sweeping views across the valley towards the charming village of Álora, this beautiful country property offers the perfect blend of rural tranquillity, space, and income potential.

Just a 10-minute drive from the village and train station, with a direct connection to Málaga, the property enjoys a wonderfully private setting while still being conveniently close to amenities and transport links.

The estate sits on almost 18,000m² of flat, usable land, making it ideal for a wide variety of rural lifestyles. Whether you dream of keeping horses, cultivating crops, creating gardens, or simply enjoying the freedom of open countryside, this land provides endless possibilities.

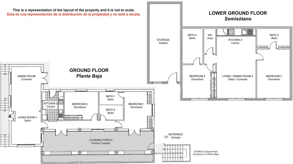
The house itself has been thoughtfully designed and is divided into two independent apartments, making it ideal for extended family living or for generating rental income while maintaining privacy.
The upper apartment features two comfortable bedrooms and two bathrooms, along with a fully equipped kitchen and a bright living and dining area centred around a cosy log fireplace. From here, doors open onto a covered veranda, the perfect place to relax and take in the stunning panoramic views across the surrounding countryside and towards Álora.

The lower apartment offers a spacious open-plan living area combining living room, dining space and kitchen, along with two bedrooms—each with its own ensuite bathroom—and an additional guest toilet. Large double doors from both the living area and bedrooms lead directly out to the private swimming pool terrace, creating a seamless indoor-outdoor living experience.

On this level there is also a large storeroom, which could easily be converted into an additional bedroom with ensuite bathroom, as well as a garage, adding further flexibility to the property.

Built to a high standard, the home benefits from municipal water supply, mains electricity, and importantly holds the First Occupation Licence, offering peace of mind for both residential use and potential rentals.

Combining spectacular views, extensive usable land, flexible accommodation and excellent access to Málaga, this is a wonderful opportunity for anyone seeking a true Andalusian country lifestyle with the added advantage of rental potential.

Alternatives

1-7980e48d732b6fc85c14b43b94d2aa54.jpg

Te koop Finca - Cortijo Costa Del Sol Estepona € 795.000,-

Price € 795.000,-
Plus d'information
1-7980e48d732b6fc85c14b43b94d2aa54.jpg

Te koop Finca - Cortijo Costa Del Sol Periana € 749.000,-

Price € 749.000,-
Plus d'information
1-7980e48d732b6fc85c14b43b94d2aa54.jpg

Te koop Finca - Cortijo Costa Del Sol Campo Mijas € 715.000,-

Price € 715.000,-
Plus d'information
1-7980e48d732b6fc85c14b43b94d2aa54.jpg

Te koop Finca - Cortijo Costa Del Sol Alora € 690.000,-

Price € 690.000,-
Plus d'information
Disclaimer | Links
Casadelmar %lng_cookie_notice% %lng_close%
x