Benahavís

Te koop Middle Floor Apartment Costa Del Sol Benahavís € 680.000,-

Ref.no: RSOR5337460
Price: € 680.000,-

1-7980e48d732b6fc85c14b43b94d2aa54.jpg

Te koop Middle Floor Apartment Costa Del Sol Benahavís € 680.000,-

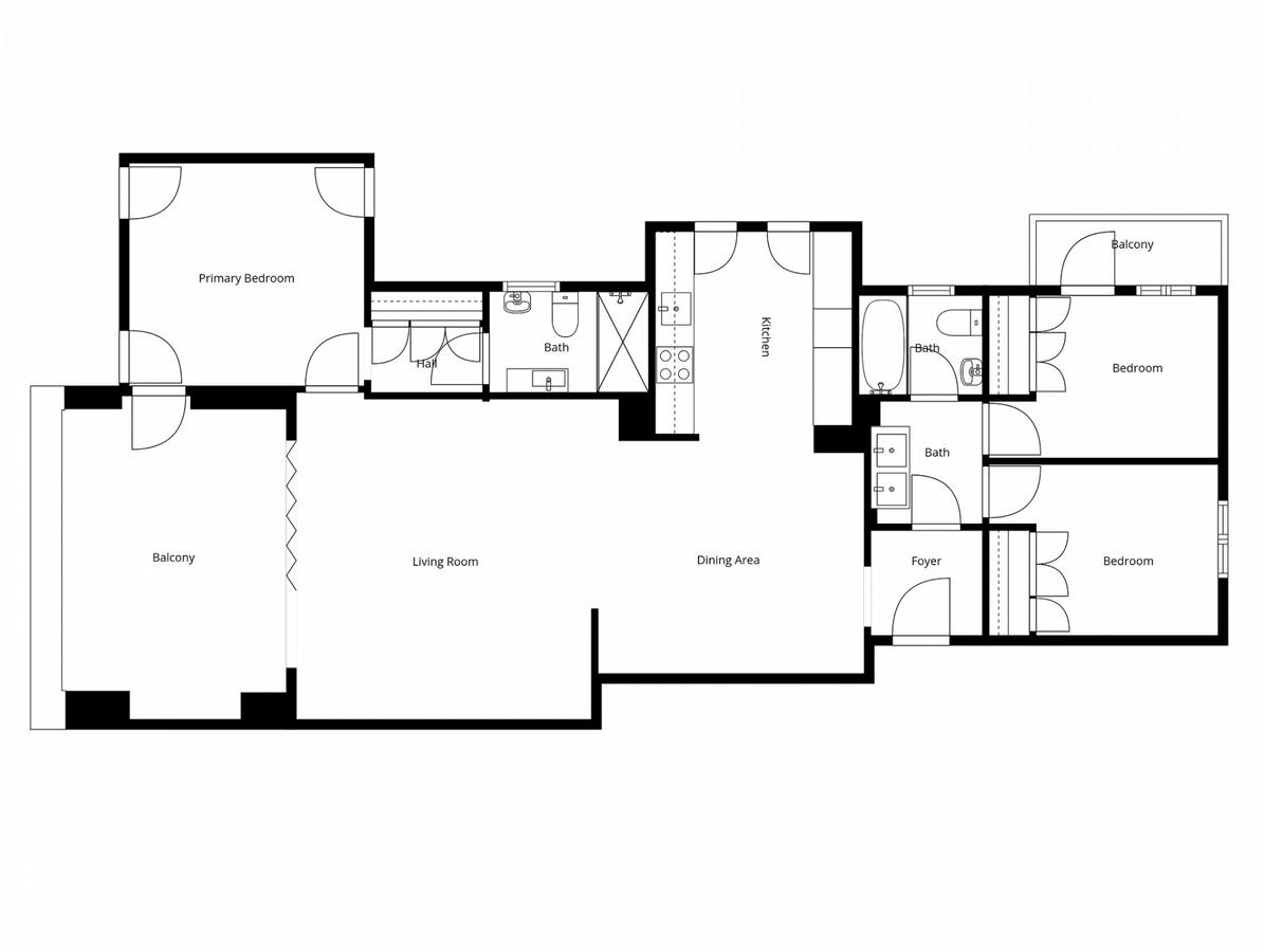
Bedrooms3
Salles de bains2
Living area137m²
Poolyes
Gardenyes
Parkingyes
Built year1998
Instelling: dicht bij golf
Orientatie: Noord-West
Staat: uitstekend, recent gerenoveerd
Zwembad: gemeenschappelijk
Klimaatregeling: airconditioning
Uitzicht: zee, bergen, golf
Functies: Overdekt terras, inbouwkasten, privéterras, marmeren vloeren
Meubilair: niet gemeubileerd
Keuken: Gedeeltelijk ingericht, keuken-woonkamer
Tuin: Gemeenschappelijk
Beveiliging: Gated Complex
Parkeren: gemeenschappelijk
Ref.no: RSOR5337460
Price: € 680.000,-

Plus d'information ›››
Te koop Middle Floor Apartment Costa Del Sol Benahavís € 680.000,-

Ce magnifique appartement de 3 chambres, entièrement rénové, est à vendre à Eagles Village, La Quinta. Il offre un parfait équilibre entre confort moderne et cadre naturel dans le quartier très prisé de Benahavís. Idéalement situé à proximité du prestigieux golf de La Quinta, Eagles Village est réputé pour son environnement paisible et bien entretenu. Il offre à ses résidents une grande intimité tout en étant à quelques minutes en voiture des terrains de golf, des commodités et des meilleurs restaurants de la Costa del Sol.

Les résidents d'Eagles Village à La Quinta peuvent profiter d'une piscine commune et d'une pataugeoire séparée pour les enfants, ce qui en fait un cadre idéal pour les familles et les séjours de vacances.

Cette propriété offre un agencement lumineux et ouvert, combinant harmonieusement salle à manger et salon pour créer une atmosphère spacieuse et accueillante, idéale au quotidien comme pour recevoir. De larges baies vitrées coulissantes s'ouvrent sur une terrasse couverte offrant une vue imprenable sur le golf de La Quinta, les montagnes environnantes et un aperçu de la mer, un lieu parfait pour se détendre en toute saison.

La cuisine ouverte est conçue avec soin, avec des fenêtres qui laissent entrer la lumière naturelle et offrent une vue paisible sur les montagnes pendant la préparation des repas.

La chambre principale, spacieuse, bénéficie d'un accès direct à la terrasse et d'une élégante salle de bains privative. Deux autres chambres se partagent une salle de bains moderne, ce qui rend cet appartement idéal pour les familles ou pour recevoir des invités.

Une place de parking est incluse dans le prix, ce qui ajoute du confort et de la valeur à ce bien attrayant.

Cette propriété représente une excellente opportunité d'acquérir une maison rénovée à Eagles Village, La Quinta, alliant design contemporain, vues panoramiques et proximité avec le golf de La Quinta, l'un des quartiers les plus prisés de Benahavís.

Alternatives

BOHAAP4366_22046_V1_71CF.jpg

Te koop Penthouse Costa Del Sol Estepona € 625.000,-

Price € 625.000,-
Plus d'information
BOHACP1292_3637_V1_09B3.jpg

Te koop Appartement Costa Del Sol Estepona € 635.000,-

Price € 635.000,-
Plus d'information
BOHADP23_325_V0_9713.jpg

Te koop Appartement Costa Del Sol Puerto Marina € 599.000,-

Price € 599.000,-
Plus d'information
BOHACP1400_4534_V1_2F59.jpg

Te koop Appartement Costa Del Sol Estepona € 654.000,-

Price € 654.000,-
Plus d'information
Disclaimer | Links
Casadelmar %lng_cookie_notice% %lng_close%
x