Cómpeta

Te koop Vrijstaande Villa Costa Del Sol Cómpeta € 446.000,-

Ref.no: RSOR5337280
Price: € 446.000,-

1-7980e48d732b6fc85c14b43b94d2aa54.jpg

Te koop Vrijstaande Villa Costa Del Sol Cómpeta € 446.000,-

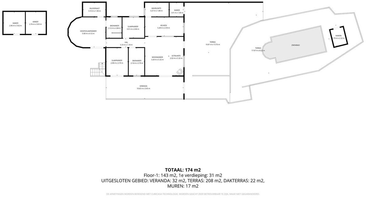
Bedrooms4
Salles de bains3
Superficie du terrain4500m²
Living area175m²
Poolyes
Gardenyes
Parkingyes
Built year2005
Instelling: Land
Orientatie: Zuid
Staat: goed
Zwembad: privé
Klimaatregeling: airconditioning, open haard
Uitzicht: zee, bergen, panoramisch
Équipements : Placards intégrés, Terrasse privée, Wi-Fi, Appartement d'invités, Salle de bains privative, Barbecue, Double vitrage
Meubels: gedeeltelijk gemeubileerd
Keuken: volledig ingericht
Tuin: privé
Parkeren: privé
Hulpprogramma's: elektriciteit, drinkwater
Categorie: Vakantiehuizen, Investering, Wederverkoop
Ref.no: RSOR5337280
Price: € 446.000,-

Plus d'information ›››
Te koop Vrijstaande Villa Costa Del Sol Cómpeta € 446.000,-

Villa paisible située près de Cómpeta, offrant 3 chambres, 2 salles de bains et un studio indépendant dans une tour avec une grande terrasse sur le toit. Un cadre exceptionnel alliant intimité, confort et vues panoramiques imprenables sur la mer et la montagne.

ESPACE DE VIE ET AMÉNAGEMENT
Cette maison dispose d'un salon lumineux et accueillant où la vue est omniprésente. Depuis le salon (et l'une des chambres), vous accédez directement à une magnifique terrasse, idéale pour profiter du plein air toute l'année.
• Cuisine entièrement équipée
• Grande buanderie/cellier derrière la cuisine
• Climatisation dans toutes les chambres
• Un poêle à bois chaleureux dans le salon

Au rez-de-chaussée, vous trouverez :
• 2 chambres spacieuses
• 1 pièce plus petite (actuellement utilisée comme bureau à domicile)
• 2 salles de bains, dont 1 attenante
• Chambre principale avec dressing
À l'étage, le studio de la tour est idéal pour accueillir des invités ou comme espace de travail calme, son atout majeur étant sa grande terrasse sur le toit.

Vivre en plein air
Plusieurs terrasses vous invitent à profiter de la nature environnante, des montagnes et de la mer. Vous y trouverez un confortable espace lounge couvert avec pergola pour vous abriter du soleil, un charmant coin repas en plein air et un espace barbecue – idéal pour des soirées de détente.
Il y a également une grande terrasse avec piscine, idéale pour les journées ensoleillées, les couchers de soleil et pour passer du temps entre amis ou en famille.

EAU, ÉLECTRICITÉ ET ACCÈS
• Approvisionnement en eau via une part privée d'une grande source (Torrox) – environ 10 000 litres par semaine en moyenne
• Raccordé au réseau électrique
• Situé à proximité d'une route asphaltée très calme : accès facile toute l'année

EMPLACEMENT
• À environ 10 minutes du quartier animé de Cómpeta (boutiques, restaurants, bars)
• Environ 40 minutes de la côte (Torrox inclus)

Vous recherchez une maison andalouse confortable avec hébergement pour les invités, de magnifiques espaces extérieurs et des vues à couper le souffle ? Contactez-nous pour obtenir tous les détails, des photos/vidéos et organiser une visite.

Alternatives

BOHACP1443_4924_V1_B3F9.jpg

Te koop Halfvrijstaand Costa Del Sol Vélez-málaga € 435.000,-

Price € 435.000,-
Plus d'information
1-7980e48d732b6fc85c14b43b94d2aa54.jpg

Te koop Vrijstaande Villa Costa Del Sol Antequera € 472.500,-

Price € 472.500,-
Plus d'information
1-7980e48d732b6fc85c14b43b94d2aa54.jpg

Te koop Vrijstaande Villa Costa Del Sol Casares € 395.000,-

Price € 395.000,-
Plus d'information
1-7980e48d732b6fc85c14b43b94d2aa54.jpg

Te koop Vrijstaande Villa Costa Del Sol Benalmadena Pueblo € 466.500,-

Price € 466.500,-
Plus d'information
Disclaimer | Links
Casadelmar %lng_cookie_notice% %lng_close%
x