Estepona

Te koop Residential Plot Costa Del Sol Estepona € 300.000,-

Ref.no: RSOR5317642
Price: € 300.000,-

1-7980e48d732b6fc85c14b43b94d2aa54.jpg

Te koop Residential Plot Costa Del Sol Estepona € 300.000,-

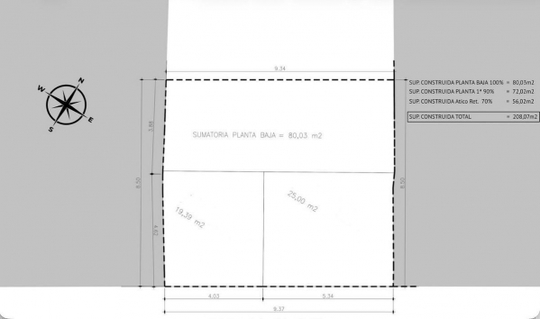
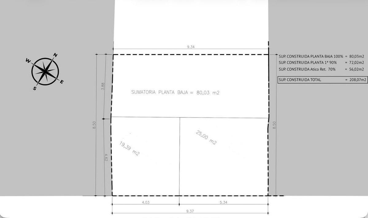
Superficie du terrain80m²
Poolno
Gardenyes
Parkingno
Setting: Town, Village, Close To Shops, Close To Sea, Close To Town, Close To Schools
Orientation: South
Ref.no: RSOR5317642
Price: € 300.000,-

Plus d'information ›››
Te koop Residential Plot Costa Del Sol Estepona € 300.000,-

Development Opportunity in Estepona Old Town

An increasingly rare opportunity to acquire a wide-fronted development parcel in one of the most desirable residential streets within Estepona’s historic centre.

The plot extends to approximately 80m², with a generous frontage of nearly 10 metres — a notable advantage within the tightly held Old Town grid. This width allows for a far more balanced and architecturally expressive façade than is typically available in this location.

Planning parameters allow for the construction of:
80m² ground floor
72m² first floor
56m² attic level

Providing approximately 208m² above ground, with additional potential — subject to final technical design and excavation feasibility — to incorporate a circa 40m² basement, creating a total built area of approximately 248m².

The plot benefits from a south-facing orientation, ensuring excellent natural light throughout the day — a genuine advantage in the Old Town environment where orientation is critical.

Positioned just moments from some of Estepona’s most beautiful plazas and within comfortable walking distance of all amenities and the beachfront, the setting offers both privacy and immediate access to the vibrancy of town living.

Opportunities of this nature are finite. The historic centre has a fixed urban footprint, and well-located development parcels of meaningful width seldom come to market.

This represents a compelling opportunity for a private buyer seeking to create a bespoke residence in a prime location, or for a discerning investor/developer looking to deliver a high-quality end product in one of the Costa del Sol’s most authentic urban settings.

Alternatives

1-7980e48d732b6fc85c14b43b94d2aa54.jpg

Te koop Residential Plot Costa Del Sol Casares Playa € 320.000,-

Price € 320.000,-
Plus d'information
1-7980e48d732b6fc85c14b43b94d2aa54.jpg

Te koop Residential Plot Costa Del Sol Fuengirola € 280.000,-

Price € 280.000,-
Plus d'information
1-7980e48d732b6fc85c14b43b94d2aa54.jpg

Te koop Residential Plot Costa Del Sol Casares Playa € 340.000,-

Price € 340.000,-
Plus d'information
1-7980e48d732b6fc85c14b43b94d2aa54.jpg

Te koop Residential Plot Costa Del Sol La Cala Golf € 350.000,-

Price € 350.000,-
Plus d'information
Disclaimer | Links
Casadelmar %lng_cookie_notice% %lng_close%
x