Cancelada

Te koop Penthouse Duplex Costa Del Sol Cancelada € 635.000,-

Ref.no: RSOR5251204
Price: € 635.000,-

1-7980e48d732b6fc85c14b43b94d2aa54.jpg

Te koop Penthouse Duplex Costa Del Sol Cancelada € 635.000,-

Bedrooms3
Salles de bains2
Superficie du terrain107m²
Poolyes
Gardenyes
Parkingyes
Built year2021
Situation: Golf à proximité, Magasins à proximité, Mer à proximité, Ville à proximité, Écoles à proximité, Forêt à proximité, Urbanisation
Orientatie: Zuid-West
Staat: uitstekend
Zwembad: gemeenschappelijk, binnen, verwarmd
Klimaatregeling: airconditioning, vooraf geïnstalleerde A / C, warme A / C, koude A / C, U / F / H badkamers
Uitzicht: zee, bergen, panoramisch, zwembad
Équipements : Terrasse couverte, Ascenseur, Placards aménagés, Proximité des transports, Terrasse privée, Solarium, Télévision par satellite, Wi-Fi, Salle de sport, Sauna, Local de rangement, Buanderie, Salle de bains privative, Barbecue, Double vitrage, Restaurant sur place, Fibre optique
Meubels: volledig gemeubileerd
Keuken: volledig ingericht
Tuin: Gemeenschappelijk
Beveiliging: Gated Complex, Entry Phone
Parkeren: ondergronds, privé
Hulpprogramma's: elektriciteit, drinkwater, telefoon
Categorie: Vakantiehuizen, Investering, Hedendaags
Ref.no: RSOR5251204
Price: € 635.000,-

Plus d'information ›››
Te koop Penthouse Duplex Costa Del Sol Cancelada € 635.000,-

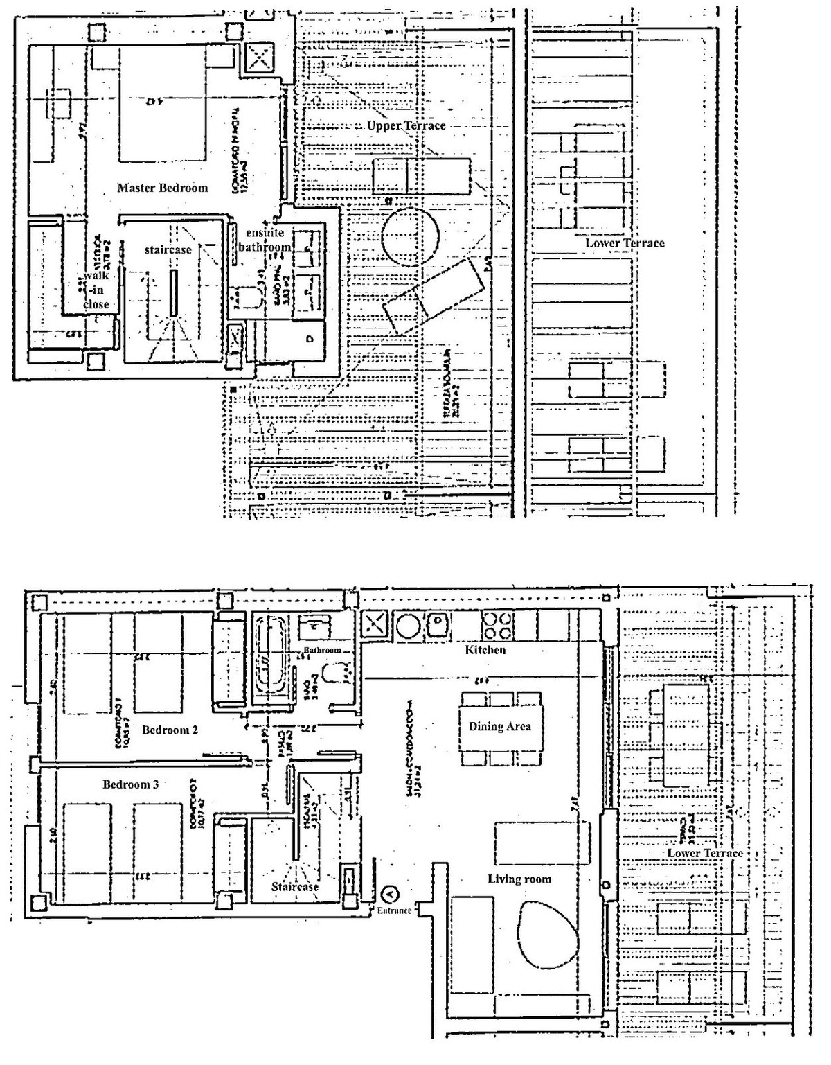
Superbe penthouse en duplex avec vue panoramique à couper le souffle à Cancelada
3 chambres | 2 salles de bain | Terrasse de 53 m² | Exposition sud-ouest | Licence touristique | Construction 2021

Bienvenue dans votre maison de rêve méditerranéenne perchée dans les airs, un magnifique penthouse en duplex situé dans l'enclave exclusive de Cancelada, à Estepona, à quelques minutes en voiture du style de vie trépidant de Marbella et du glamour de Puerto Banús.

Cette élégante résidence de 3 chambres et 2 salles de bains, construite en 2021, offre une vue panoramique imprenable s'étendant de la mer Méditerranée scintillante aux majestueuses montagnes de la Sierra Bermeja.
Et même jusqu'à Gibraltar et l'Afrique du Nord par temps clair. Avec 106 m² de surface habitable et 53 m² de terrasses privatives répartis sur deux niveaux, chaque recoin de cette maison a été pensé pour vous offrir lumière, confort et luxe.

Le cœur de la maison est un espace de vie ouvert comprenant une cuisine élégante noire laquée avec des appareils Siemens, une salle à manger spacieuse et un salon confortable qui s'ouvre sur une terrasse ensoleillée, idéale pour les repas en plein air et les cocktails au coucher du soleil.

À l'étage, la suite parentale devient votre refuge personnel, avec salle de bains attenante, dressing et accès direct à la terrasse solarium, où vous attendent séances de yoga au lever du soleil ou nuits d'observation des étoiles.

Principales caractéristiques que vous allez adorer :
- Orienté sud-ouest avec vue sur la mer, la piscine, la montagne et un panorama exceptionnel
- 53 m² d'espace extérieur privé : terrasse principale de 28 m² + solarium sur le toit de 25 m²
- Licence touristique en vigueur – succès avéré en tant qu'investissement locatif de vacances
- Climatisation réversible intégrée, réglable individuellement dans chaque pièce
- Placards intégrés dans toutes les chambres
- Parking souterrain et local de rangement privé (inclus dans le prix)
- Résidence sécurisée avec service de sécurité, conciergerie et équipements de type complexe hôtelier :
- Piscine extérieure avec terrasses ensoleillées
- Piscine intérieure chauffée, sauna, hammam, salle de sport et restaurant sur place (accès exclusif au club-house)
- Entouré de terrains de golf de haut niveau, de clubs de tennis et de padel, et d'hôtels 5 étoiles comme la Villa Padierna
À proximité d'excellentes écoles internationales et à distance de marche du village de Cancelada avec ses commerces et restaurants
- À seulement 10 minutes de Marbella et des plages du Nouveau Golden Mile

Que vous recherchiez une résidence principale, une luxueuse maison de vacances facile à entretenir ou un bien locatif performant, ce penthouse offre style, emplacement et style de vie dans l'un des quartiers les plus prisés de la Costa del Sol.

Alternatives

1-7980e48d732b6fc85c14b43b94d2aa54.jpg

Te koop Penthouse Costa Del Sol Benalmadena € 597.000,-

Price € 597.000,-
Plus d'information
1-7980e48d732b6fc85c14b43b94d2aa54.jpg

Te koop Penthouse Duplex Costa Del Sol Los Arqueros € 575.000,-

Price € 575.000,-
Plus d'information
1-7980e48d732b6fc85c14b43b94d2aa54.jpg

Te koop Penthouse Duplex Costa Del Sol Nueva Andalucía € 560.000,-

Price € 560.000,-
Plus d'information
1-7980e48d732b6fc85c14b43b94d2aa54.jpg

Te koop Penthouse Costa Del Sol Fuengirola € 618.000,-

Price € 618.000,-
Plus d'information
Disclaimer | Links
Casadelmar %lng_cookie_notice% %lng_close%
x