Alhaurín De La Torre

Te koop Finca - Cortijo Costa Del Sol Alhaurín De La Torre € 595.000,-

Ref.no: RSOR5202568
Price: € 595.000,-

1-7980e48d732b6fc85c14b43b94d2aa54.jpg

Te koop Finca - Cortijo Costa Del Sol Alhaurín De La Torre € 595.000,-

Bedrooms6
Salles de bains4
Superficie du terrain407m²
Poolyes
Gardenyes
Parkingno
Built year2004
Instelling: Land
Orientatie: Noord
Staat: goed
Zwembad: privé
Klimaatregeling: airconditioning, centrale verwarming, open haard
Uitzicht: zee, bergen, land
Caractéristiques : Terrasse couverte, Terrasse privée, Appartement d'invités, Maison d'hôtes, Débarras, Salle de bains attenante, Double vitrage, Sous-sol
Meubilair: niet gemeubileerd
Keuken: volledig ingericht
Tuin: privé
Parkeren: Garage, privé
Hulpprogramma's: elektriciteit, drinkwater
Categorie: Wederverkoop
Ref.no: RSOR5202568
Price: € 595.000,-

Plus d'information ›››
Te koop Finca - Cortijo Costa Del Sol Alhaurín De La Torre € 595.000,-

Cette propriété impressionnante bénéficie d'un emplacement exceptionnel avec vue sur la baie de Málaga et la chaîne de montagnes de la Sierra de Mijas.

À moins de 4 km du magnifique village d'Alhaurín de la Torre, à moins de 5 minutes en voiture du célèbre golf de Lauro, à seulement 20 minutes de la ville de Málaga et de l'aéroport, cette propriété offre une maison familiale très spacieuse ou une opportunité pour une activité de chambre d'hôtes rurale.

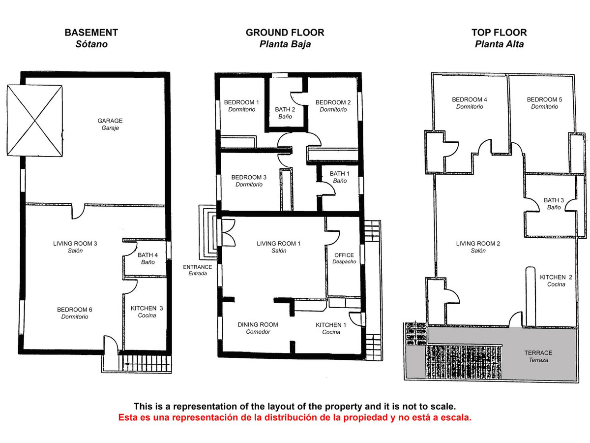
La maison est répartie sur 3 espaces de vie indépendants.

L'appartement de deux chambres est accessible par un escalier extérieur. Il comprend un séjour ouvert avec cuisine/salle à manger, une salle de bains partagée et une terrasse privative offrant une vue imprenable sur la mer et les montagnes.

Le rez-de-chaussée comprend un vaste séjour avec cheminée, une cuisine/salle à manger, quatre chambres (dont une suite parentale) et des toilettes invités. Une véranda couverte offre un espace repas supplémentaire agréable avec vue sur la baie de Malaga.

Le sous-sol de 155 m² possède son propre accès et offre soit un vaste espace de rangement, soit un espace de vie indépendant avec salle de bains. Le garage peut accueillir 2 ou 3 voitures. Attenant à la maison se trouve un espace extérieur séparé qui, si nécessaire, peut offrir un stationnement supplémentaire.

À l'arrière de la maison se trouve une terrasse très privée avec piscine. Le jardin, sans voisins immédiats, offre une vue imprenable sur la baie de Malaga et garantit une intimité totale.

Alternatives

1-7980e48d732b6fc85c14b43b94d2aa54.jpg

Te koop Finca - Cortijo Costa Del Sol Coín € 535.000,-

Price € 535.000,-
Plus d'information
1-7980e48d732b6fc85c14b43b94d2aa54.jpg

Te koop Finca - Cortijo Costa Del Sol Alhaurín De La Torre € 499.000,-

Price € 499.000,-
Plus d'information
1-7980e48d732b6fc85c14b43b94d2aa54.jpg

Te koop Finca - Cortijo Costa Del Sol San Martín De Tesorillo € 636.300,-

Price € 636.300,-
Plus d'information
1-7980e48d732b6fc85c14b43b94d2aa54.jpg

Te koop Finca - Cortijo Costa Del Sol Málaga € 530.000,-

Price € 530.000,-
Plus d'information
Disclaimer | Links
Casadelmar %lng_cookie_notice% %lng_close%
x