Estepona

Te koop Grond Costa Del Sol Estepona € 350.000,-

Ref.no: RSOR5182012
Price: € 350.000,-

1-7980e48d732b6fc85c14b43b94d2aa54.jpg

Te koop Grond Costa Del Sol Estepona € 350.000,-

Poolno
Gardenyes
Parkingno
Instelling: dicht bij de haven, dicht bij winkels, dicht bij de zee, dicht bij de stad, dicht bij scholen
Orientatie: Zuid-West
Uitzicht: zee, bergen, golf, land, panoramisch
Ref.no: RSOR5182012
Price: € 350.000,-

Plus d'information ›››
Te koop Grond Costa Del Sol Estepona € 350.000,-

Remarque : Pour vous offrir le meilleur service possible, veuillez indiquer votre adresse e-mail et votre numéro de téléphone lors de votre demande. Merci.


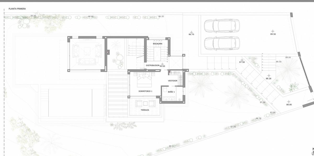
Terrain constructible de 880 m² avec projet et structure à Estepona, avec vue sur la mer et le golf – Idéal pour un développement personnalisé ou un investissement
Ce terrain de 880,33 m² dans un quartier résidentiel en pleine croissance d'Estepona présente une excellente opportunité de développer une villa privée à quelques minutes de la plage, des terrains de golf et de toutes les commodités locales.

La propriété comprend des fondations existantes, offrant au futur propriétaire deux options claires :
Option 1 : Construire une villa en s'appuyant sur les fondations structurelles existantes (projet d'exécution disponible).
Option 2 : Supprimer les fondations actuelles et développer une conception entièrement nouvelle à partir de zéro.

Dans les deux cas, l'acheteur devra demander un permis de construire auprès de la mairie locale.
Situé dans un quartier calme et bien desservi d'Estepona, ce terrain est idéal pour les particuliers, les promoteurs ou les investisseurs souhaitant construire une villa moderne avec piscine, jardin et espaces de vie ouverts. Bénéficiant d'une bonne exposition au soleil et d'un accès facile au centre-ville d'Estepona, à Marbella, à Puerto Banús et à l'aéroport de Malaga, cet emplacement offre un rapport qualité-prix à long terme et un style de vie attrayant.

NOTRE AGENCE REDÉFINIT L'EXPÉRIENCE IMMOBILIÈRE AVEC UN DÉDICACE À UN SERVICE TRANSPARENT ET CENTRÉ SUR LE CLIENT.
Notre mission va bien au-delà des transactions immobilières : nous proposons un parcours complet et élevé vers l'accession à la propriété, conçu pour rendre chaque étape aussi fluide et sans stress que possible.

Grâce à notre assistance spécialisée en matière de visas, nous simplifions votre installation internationale en gérant avec expertise les complexités juridiques et administratives pour vous et votre famille. Pour faciliter encore davantage votre installation en Espagne, nous vous proposons également une assistance gratuite pour le NIE, vous permettant ainsi de lever les obstacles administratifs et de gagner un temps précieux.
Nous comprenons que chaque investissement compte. C'est pourquoi notre équipe interne de courtage hypothécaire travaille sans relâche pour vous garantir les conditions les plus avantageuses, adaptées à votre situation financière unique, rendant ainsi votre rêve immobilier plus accessible que jamais.

Notre approche est claire et directe : vous traitez exclusivement avec nous, sans intermédiaires inutiles. Cela garantit un processus d'achat transparent et simplifié. Nous vous offrons également une assistance juridique gratuite pour protéger votre investissement et garantir la protection de vos intérêts tout au long du processus.
Vous bénéficiez d'un accès exclusif à des annonces premium, proposées par nos agents dédiés, qui possèdent une connaissance approfondie du marché et un accès privilégié aux opportunités hors marché. Il ne s'agit pas seulement de trouver un bien, mais de créer une expérience personnalisée, adaptée à votre style de vie et à votre vision à long terme.

nous ne vendons pas seulement des propriétés — nous vous aidons à construire votre avenir, avec soin, clarté et confiance.
Caractéristiques principales :

Superficie du terrain : 880,33 m²
Convient pour construire une villa avec piscine
Cadre résidentiel calme avec vue mer et golf
À proximité du golf, des plages et des services
Excellent potentiel d'investissement

Ne manquez pas cette chance de construire votre maison idéale dans l'un des endroits côtiers les plus attrayants du sud de l'Espagne.
LAISSEZ-NOUS VOUS DÉPLACER!

Alternatives

1-7980e48d732b6fc85c14b43b94d2aa54.jpg

Te koop Grond Costa Del Sol Estepona € 330.000,-

Price € 330.000,-
Plus d'information
1-7980e48d732b6fc85c14b43b94d2aa54.jpg

Te koop Grond Costa Del Sol Estepona € 300.000,-

Price € 300.000,-
Plus d'information
1-7980e48d732b6fc85c14b43b94d2aa54.jpg

Te koop Grond Costa Del Sol Mijas € 330.000,-

Price € 330.000,-
Plus d'information
1-7980e48d732b6fc85c14b43b94d2aa54.jpg

Te koop Grond Costa Del Sol Casares € 400.000,-

Price € 400.000,-
Plus d'information
Disclaimer | Links
Casadelmar %lng_cookie_notice% %lng_close%
x